Dettagli
- TipologiaCapannone
- ComunePadova
- ZonaGranze - Camin
- Camere3+
- Bagni2
- Anno di costruzione2005
- ZonaGranze - Camin
Descrizione
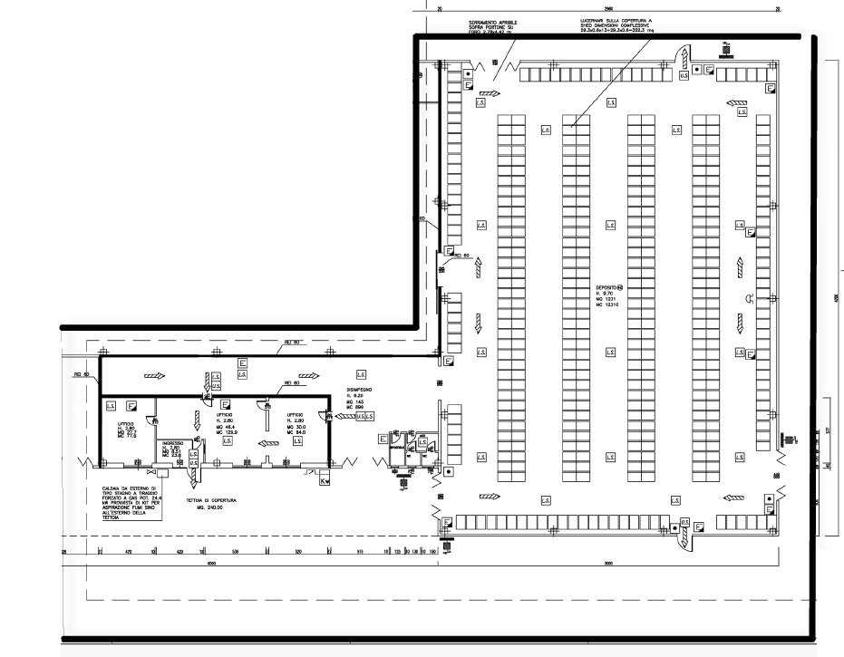
Nella zona industriale delle Granze di Camin (Padova), proponiamo in locazione un capannone moderno e funzionale, disponibile dal 1° gennaio 2026. L’immobile si sviluppa su una superficie totale di circa 1700 mq ed è stato edificato nel 2005 con buone finiture interne ed esterne.
Il capannone, posto al piano terra, offre uno spazioso ingresso che conduce ad un disimpegno di ben 145 mq e ad un'area open space di circa 1231 mq dotata di scaffalature metalliche già installate – ideale per attività logistiche o produttive. Un soppalco portante da 100 mq amplia ulteriormente la versatilità degli spazi. La soluzione comprende anche uffici distinti: reception accogliente da 9 mq e tre vani separati rispettivamente da 46,30 e 28 mq; completano il tutto servizi igienici e pratico ripostiglio per complessivi 1600 mq calpestabili.
L’altezza interna raggiunge i 9,70 metri offrendo massima flessibilità alle operazioni aziendali; sono presenti tre ampi portoni dedicati al carico/scarico merci. Lo scoperto esterno comune misura circa mille metri quadri con possibilità utilizzo vari posti auto.
Gli ambienti interni risultano luminosi grazie ai lucernari sul tetto che garantiscono luce naturale diffusa durante tutta la giornata lavorativa. Gli uffici sono climatizzati tramite impianto d’aria condizionata indipendente mentre l’intero stabile dispone di riscaldamento autonomo e sistema d’allarme per la sicurezza dei locali. Zero spese condominiali!
La posizione strategica permette rapido accesso sia alla città sia alle principali arterie viarie verso Noventa Padovana, Villatora di Saonara, Tombelle, Legnaro fino a Ponte San Nicolò/Roncaglia/Roncajette; nelle immediate vicinanze supermercati Iperlando/Coop/NaturaSì ma anche fermate autobus pubbliche nonché aree verdi attrezzate sportive/campo calcio.
Indirizzo indicativo sulla mappa per motivi privacy.
Servizi agenzia inclusi: registrazione telematica contratti locazione obbligatoria (oltre dieci unità catastali), assistenza preliminare compravendita/pratiche edilizie-catastali/classificazioni energetiche.
Per maggiori dettagli o fissare una visita senza impegno contattaci subito oppure consulta altre proposte su www.etabetaimmobiliare.it.
